Căn hộ với những mảng tường cũ kỹ, nội thất xập xệ được mua sắm từ những năm 80 đã lột xác ngoạn mục thành tổ ấm hạnh phúc, không gian lý tưởng mà bất kỳ cặp vợ chồng trẻ nào cũng ước ao.
- Không thể rời mắt khỏi mẫu bàn ăn mặt đá đầy cảm hứng
- Gợi ý bàn ăn mạ PVD hiện đại cho
căn hộ, chung cư
- Trang trí nhà bếp với mẫu bàn ăn mạ vàng được nhiều
người yêu thích
- Chọn bàn ăn mạ titan làm sáng bừng không gian nhà bếp
Cặp vợ chồng trẻ đã quyết định mua căn hộ rộng 40m², khá cũ kỹ và mờ nhạt trong cách trang trí. Tuy nhiên, không gian ấy có thể sửa chữa thật đẹp theo nhu cầu sử dụng của cặp vợ chồng trẻ nên họ đã quyết định mua lại.

Căn hộ ấm cúng, đủ đầy với nội thất xinh xắn cùng cách bài trí các khu vực chức năng vô cùng hợp lý.
Ban đầu, căn hộ có hai phòng ngủ. Vì nhu cầu sử dụng ở khoảng thời gian hiện tại, hai vợ chồng chỉ dùng một phòng ngủ. Không gian căn hộ được sửa chữa lại một cách thuận tiện và hợp lý. Những mảng cửa sổ được mở rộng, cải tạo sàn và trần, tường được sơn lại với màu sắc bắt mắt. Mọi góc nhỏ trở nên bừng sáng nhờ bàn tay khéo léo của hai vợ chồng.
Hiện trạng ban đầu của căn hộ trước khi cải tạo.
Căn hộ được "biến hóa" chỉ trong chốc lát với cách sửa chữa vô cùng hiện đại, ấn tượng, trẻ trung. Lối vào nhà với khung cửa chính được thiết kế màu gỗ đậm tạo chiều sâu cho không gian khi nhìn từ bên trong. Bên cạnh đó là sàn gỗ sáng màu, đủ để mang lại cách kết hợp, pha trộn màu sắc một cách dễ dàng. Tủ đựng giày được đặt sát hốc tường, tận dụng diện tích tạo sự vuông vắn, gọn gàng cho lối vào nhà.

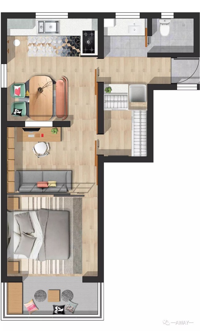
Sơ đồ bố trí căn hộ.

Góc để giày gọn gàng. Phía trên tủ đựng giày được đóng thêm bảng đinh giúp mọi người cất trữ chìa khóa, treo quần áo, mũ nón sau khi đi về nhà.

Không gian lối vào được tách biệt với khu vực sinh hoạt chung bằng cửa gỗ trượt đơn giản.
Góc lối vào còn được đặt thêm máy giặt và ngăn tủ để đồ. Phía trên có bồn rửa nhỏ xíu giúp mọi người tiện lợi hơn trong việc giặt giũ, cất trữ quần áo.

Góc nhỏ còn đặt tủ đựng đồ kèm máy giặt.

Phía trên không gian giặt là còn được đóng thêm tủ đồ giúp cặp vợ chồng trẻ khéo léo cất trữ được vô số đồ đạc lặt vặt giúp ngôi nhà nhỏ thêm xinh.
Từ lối vào bước đến không gian đầu tiên là phòng bếp. Căn bếp xinh xắn hơn rất nhiều so với hiện trạng. Nhờ sự kết hợp màu sắc khéo léo cùng cách lựa chọn màu sắc phù hợp, không gian bếp mang vẻ đẹp vừa hiện đại vừa ấm cúng.

Góc bếp xinh xắn ngăn cách với lối vào bằng cửa trượt.

Bếp là nơi người vợ chế biến nhiều món ngon.

Góc bếp khéo léo được đặt thêm móc treo giúp lưu trữ nhiều đồ đạc.

Không gian ấn tượng hơn nhờ những gam màu trung tính.


Bếp hiện đại và tiện nghi.
Tiếp nối với không gian bếp là nơi được bố trí phòng sinh hoạt chung, nơi nghỉ ngơi của hai vợ chồng trẻ.

Tủ đựng đồ được sắp đặt dạng cánh trượt để tăng diện tích sử dụng cho không gian bên ngoài.

Các kệ đựng đồ được bố trí bên trong gọn gàng.

Khu vực nghỉ ngơi đẹp ấn tượng với gam màu trắng tinh khôi kết hợp với nội thất gỗ ấm cúng, thân thiện.

Góc thư giãn, đọc sách bên cửa sổ.

Chiếc giường nhỏ đủ để mọi người hàn huyên, chuyện trò, nghỉ ngơi thư giãn.

Không gian ưu tiên cho màu trắng giúp căn phòng nhỏ rộng hơn, tinh tế hơn.

Bên cạnh giường ngủ là sofa và góc làm việc nhỏ xinh.

Không chiếm nhiều diện tích nhưng với cách bố trí khéo léo, cặp vợ chồng trẻ luôn cảm thấy thoải mái, an yên khi sống trong tổ ấm của mình.
Theo Helino
Hãy Comment chuẩn SEO vừa làm tốt cho site của Bạn vừa không bị GOOGLE phạt. Nếu muốn lấy backlink hãy chèn URL không chèn code gắn text link. Biểu tượng hài hướcEmoticon