Thiết kế nhà ống 2 tầng được rất nhiều gia đình lựa chọn vì chi phí xây dựng vừa phải, phù hợp với phần đông dân số đồng thời mang đến không gian sống đầy đủ chức năng cần thiết cũng như sự riêng tư và thuận tiện trong sinh hoạt.
- Không thể rời mắt khỏi mẫu bàn ăn mặt đá đầy cảm hứng
- Gợi ý bàn ăn mạ PVD hiện đại cho
căn hộ, chung cư
- Trang trí nhà bếp với mẫu bàn ăn mạ vàng được nhiều
người yêu thích
- Chọn bàn ăn mạ titan làm sáng bừng không gian nhà bếp
Gia đình tôi gồm 3 người: 2 vợ chồng và 1 bé gái 1 tuổi rưỡi, (dự định trong tương lai sẽ sinh thêm 1 bé nữa), cả nhà tôi đang có nhu cầu xây nhà ống 2 tầng trên mảnh đất rộng khoảng 4m, dài khoảng 15m.
Hiện gia đình tôi muốn sắp xếp mái hiên tầng 1, 1 phòng khách, phòng bếp bàn ăn, khoảng 3 phòng ngủ, mỗi tầng 1 nhà vệ sinh. Rất mong các KTS tư vấn bố trí các phòng và nội thất giúp gia đình chúng tôi sao cho có một ngôi nhà ấm cúng và gọn gàng.
Tôi xin chân thành cảm ơn.
Phương Thảo
Kiến trúc sư tư vấn:
Dựa theo những thông tin mà bạn cung cấp và yêu cầu tư vấn thiết kế nhà ống, chúng tôi xin đưa ra phương án mặt bằng tư vấn để bạn tham khảo.

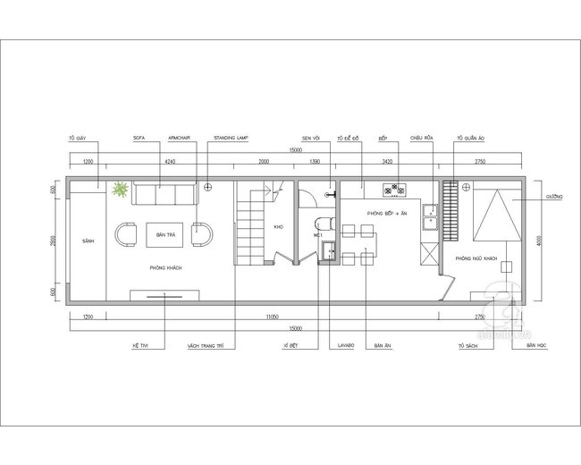
Mặt bằng tư vấn tầng trệt.

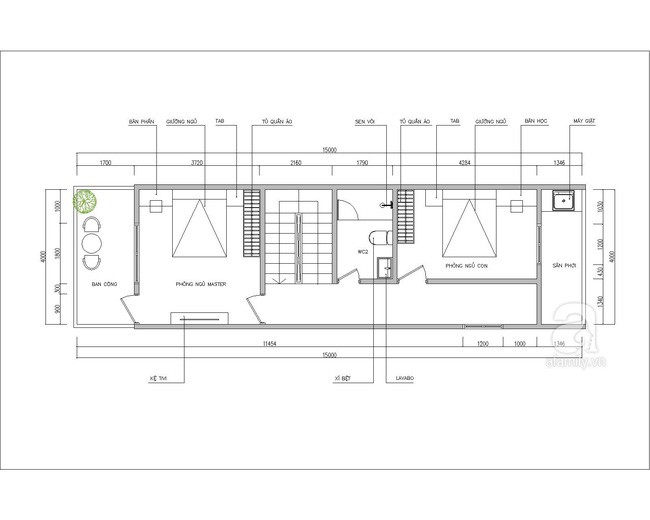
Mặt bằng tư vấn tầng 1.
Tầng trệt chúng tôi bố trí gồm phòng khách rộng, có vách trang trí phía cầu thang, phòng bếp & bàn ăn, phòng ngủ 1 và phòng vệ sinh chung. Ngay từ sảnh vào sẽ là không gian phòng khách được thiết kế với phong cách hiện đại với các vách gỗ trang trí tạo cảm giác ấm cúng cho không gian.
Phía cầu thang sẽ là những nan gỗ nhẹ nhàng giúp ngăn không gian phòng khách với cầu thang. Với căn nhà hình dài thì phòng vệ sinh nhỏ sẽ được bố trí giữa nhà để tối ưu công năng và tiện lợi cho gia đình.
Tiếp đến sẽ là khu vực phòng bếp & ăn được thiết kế với tone màu chủ đạo là màu trắng sẽ khiến không gian thoáng đáng và rộng rãi hơn. Phía cuối nhà sẽ là phòng nghỉ ngơi dành cho khách đến chơi hoặc ông (bà) có thể đến thăm con cháu được thiết kế với màu sắc nhã nhặn và đơn giản.

Phòng khách hiện đại với các vách trang trí bằng gỗ.

Hệ nan gỗ giúp chia không gian phòng khách với cầu thang.

Không gian phòng bếp & ăn với gam màu trắng chủ đạo.

Vệ sinh nhỏ nhưng đầy đủ công năng.

Phòng ngủ dành cho khách.
Trên mặt bằng tầng 1 được KTS bố trí 2 phòng ngủ với diện tích khá rộng cùng 1 phòng vệ sinh kết hợp tắm đứng dùng chung. Phòng ngủ master được thiết kế với những đồ nội thất đơn giản như tủ quần áo, kệ tivi, giường ngủ, bàn trang điểm với tone màu ghi sáng. Căn phòng có lợi thế rất thoáng đãng và được lấy sáng trực tiếp từ ban công trong phòng.

Phòng ngủ master được thiết kế với gam màu trầm.

Tiểu cảnh nhỏ phía ban công phòng master.
Phía bên trong là phòng ngủ của cô công chúa nhỏ, không gian được thiết kế rất bắt mắt với màu sắc nữ tính phù hợp với lứa tuổi của con. Nội thất đơn giản kết hợp với giấy dán tường nhiều hình thù ngộ nghĩnh sẽ đáp ứng nhu cầu vui chơi giải trí thỏa thích và phát triển tư duy cho con. Một ban công nhỏ bên cạnh phòng ngủ con để lấy ánh sáng và tận dụng làm không gian giặt và phơi quần áo.

Phòng ngủ dành cho cô công chúa nhỏ.

Không gian sân phơi và giặt quần áo.
Hy vọng với phương án bố trí của Nhà Hay sẽ đáp ứng được tiện nghi cũng như nhu cầu sinh hoạt của bạn và gia đình.
Theo Afamily/Helino
Hãy Comment chuẩn SEO vừa làm tốt cho site của Bạn vừa không bị GOOGLE phạt. Nếu muốn lấy backlink hãy chèn URL không chèn code gắn text link. Biểu tượng hài hướcEmoticon