Đối với mẫu thiết kế nhà ống 4x21m này, do các đặc trưng về mặt tiền hẹp, hình dài, diện tích xây dựng thường khá nhỏ, KTS của chúng tôi đã tư vấn thiết kế ngôi nhà theo phong cách hiện đại để thực sự mang lại vẻ đẹp hiện đại, vừa đủ cho một không gian kiến trúc như vậy.
- Không thể rời mắt khỏi mẫu bàn ăn mặt đá đầy cảm hứng
- Gợi ý bàn ăn mạ PVD hiện đại cho
căn hộ, chung cư
- Trang trí nhà bếp với mẫu bàn ăn mạ vàng được nhiều
người yêu thích
- Chọn bàn ăn mạ titan làm sáng bừng không gian nhà bếp
Tôi có mảnh đất diện tích 4x21m. Tôi có dự định xây nhà với 3 phòng ngủ, bếp, phòng ăn và phòng khách nhưng do kinh phí có hạn nên tôi muốn xây 1 tầng trệt và 1 tầng lửng có 2 phòng ngủ, màu chủ yếu là màu trắng hoặc xanh.
Tầng trệt tôi muốn có 1 khoảng sân để ô tô và trong nhà có khoảng xanh để nhà được thoáng và có ánh sáng. Tôi sinh năm 1984 và chồng sinh năm 1983. Mong tư vấn giúp.
Hồng Tươi
Kiến trúc sư tư vấn:
Dựa theo những thông tin mà bạn cung cấp và yêu cầu tư vấn thiết kế, chúng tôi xin đưa ra phương án mặt bằng tư vấn thiết kế như sau:

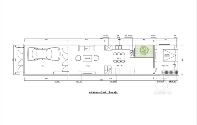
Mặt bằng tư vấn tầng trệt.

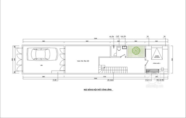
Mặt bằng tư vấn tầng lửng.
Giải quyết tính kinh tế là vấn đề mấu chốt trong xây dựng ngôi nhà. Vì thế không gian được thiết kế phong cách hiện đại, tối giản nhất, tuy nhiên vẫn đáp ứng nhu cầu sinh hoạt hiệu quả và thoải mái cho gia đình.
Để sinh hoạt gia đình được ấm cúng, thuận tiện thì tại tầng 1 của nhà ống mặt tiền 4m, KTS bố trí khoảng sân trước nhà để ô tô, một phòng khách nằm phía bên ngoài, được thiết kế theo phong cách hiện đại với gam màu trẻ trung, năng động.
Liên kết với phòng khách là phòng ăn và nhà bếp, để phù hợp với kiến trúc của ngôi nhà, KTS đã bố trí hệ tủ bếp dài với gam màu trắng và gỗ sồi sáng tạo cho không gian bếp cảm giác ấm cúng, song song với hệ tủ bếp là khối bậc thang dài để lên tầng lửng, phòng vệ sinh sẽ được đặt dưới gầm cầu thang để tiết kiệm diện tích cũng như phục vụ sinh hoạt của gia đình, xen giữa lối là một bộ bàn ghế ăn 6 ghế nhẹ nhàng, nhỏ gọn.

Nội thất phòng khách trẻ trung, bắt mắt.

Cầu thang dài phù hợp với kiến trúc ngôi nhà.

Tủ bếp với gam màu trắng kết hợp màu gỗ sồi.

Bộ bàn ghế ăn 6 ghế nhỏ gọn.

Phòng vệ sinh dưới gầm cầu thang.
Đặc biệt, ưu điểm của thiết kế này là khoảng sân xanh, linh hồn của ngôi nhà và là nơi đón nhiều ánh sáng nhất. Cuối sảnh là một phòng ngủ bố mẹ, căn phòng được đón ánh nắng trực tiếp từ cửa sổ thông phòng, nội thất trong phòng cũng được thiết kế tinh tế, đơn giản với gam màu nhã nhặn.

Khoảng cây xanh được bố trí hợp lý để lấy thoáng và sáng cho ngôi nhà.

Phòng ngủ bố mẹ với gam màu nhã nhặn.
Phía trên gác lửng là phòng ngủ của cậu con trai, lấy tông màu chủ đạo là màu xanh dương, những hệ tủ bắt mắt và decor trang trí phù hợp với lứa tuổi của con sẽ làm cho căn phòng trở nên sinh động và vui nhộn hơn rất nhiều.
Phía bên ngoài chúng tôi cũng bố trí một phòng vệ sinh nhỏ nhưng vẫn đáp ứng được công năng sử dụng. Cách bố trí này cũng rất phù hợp với văn hóa sinh hoạt gia đình của người Việt tại phố thị trong thời đại mới, khi quỹ đất thổ cư ngày càng hạn hẹp.

Phòng ngủ con trai với gam màu xanh hiện đại.

Phòng vệ sinh đầy đủ công năng bố trí trên gác lửng..
Theo Afamily/Helino
Hãy Comment chuẩn SEO vừa làm tốt cho site của Bạn vừa không bị GOOGLE phạt. Nếu muốn lấy backlink hãy chèn URL không chèn code gắn text link. Biểu tượng hài hướcEmoticon